324 Estero Blvd, FORT MYERS BEACH, FL

$4,495,000

Previous Next

0.43

Acres

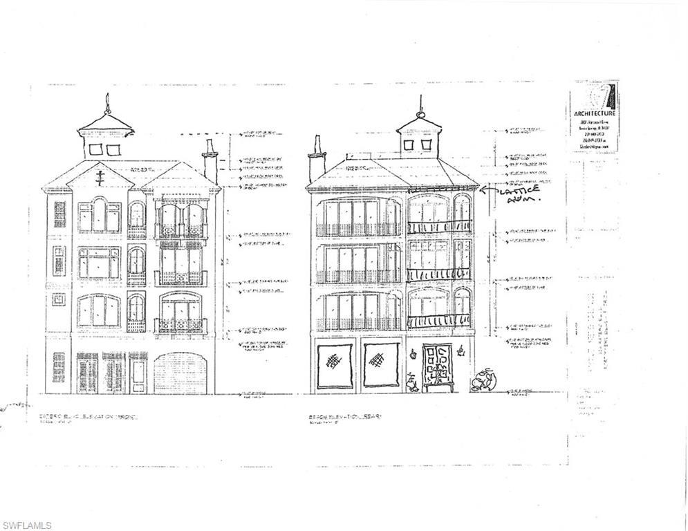
About 324 Estero Blvd

MAJOR DEVELOPMENT OPPORTUNITY FOR BUILDERS AND INVESTORS DUE TO ITS EXCELLENT LOCATION AND UNIQUE ZONING OF THIS LOT IN THE NORTH END OF ISLAND. Zoned RPD allows for the building of a large single home , or multi-unit luxury beachfront condominium with over 3000-4000 sf per unit up to three units, total 13000 sf under air, 52 feet fourth floor ceiling height and 62 feet building height feet was approved by the town. One of the floor plans showing here was approved by the town. A floor plan with four stories and three large units building with unobstructed gulf view AND bay view. Walking distance to Time Square and Bowditch Point Park. Some of the photos are digital concepts of elevations. All zoning questions and uses should be verified with the Town of Fort Myers Beach.

Features of 324 Estero Blvd

MLS® # 222090026
Price $4,495,000
Bathrooms 0.00
Acres 0.43
Type Land
Status Active

Community Information

Address 324 Estero Blvd
Area FB01 - Bodwitch Pointe to Cresce
Subdivision GULF SHORES
City FORT MYERS BEACH
County Lee
State FL
Zip Code 33931

Amenities

Utilities None
View Gulf and Bay
Is Waterfront Yes
Waterfront Gulf Frontage
Has Pool No

Interior

Fireplace No

Exterior

Lot Description Regular

Additional Information

Date Listed December 26th, 2022
Zoning RPD
Foreclosure No
Short Sale No

Listing Details

OfficeMobley Realty Group

Listing Map

Request a Showing

Provide a valid email address.
When would you like to view this property?