About 2506 Nw 31st Ave
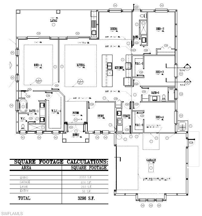
READY TO BUILT YOUR DREAM SOUTHWEST FLORIDA SINGLE FAMILY HOME! This project has a PERMIT APPROVED BRC23-002151 and PAID (Building Plans, Survey, Energy Calcs, Truss Layout, Septic Design ). Excellent Location on NW 31st PL, Close to the Burnt Store Marina, Gulf Courses, 7 Islands development project. Located in North 9 section of the utilities Expansion Project wich has not started construction yet. No Current Assessments.
Features of 2506 Nw 31st Ave
| MLS® # | 2025013793 |
|---|---|
| Price | $94,900 |
| Bathrooms | 0.00 |
| Acres | 0.25 |
| Type | Land |
| Status | Active |
Community Information
| Address | 2506 Nw 31st Ave |
|---|---|
| Area | CC42 - Cape Coral Unit 50,54,51,52,53 |
| Subdivision | CAPE CORAL |
| City | CAPE CORAL |
| County | Lee |
| State | FL |
| Zip Code | 33993 |
Amenities
| Amenities | See Remarks |
|---|---|
| Utilities | None |
| Is Waterfront | No |
| Waterfront | None |
| Has Pool | No |
Interior
| Fireplace | No |
|---|
Exterior
| Lot Description | Regular |
|---|
Additional Information
| Date Listed | October 6th, 2025 |
|---|---|
| Zoning | R1-D |
| Foreclosure | No |
| Short Sale | No |
Listing Details
| Office | Universe Realty Group, Inc |
|---|
